Piso en venta
Madrid - Palos de Moguer
Referencia:4781903169.000 €
Precio1
Habs30
M2 Volver al listado
Contacto
Descripción
Por favor, abstenerse intermediarios y/o agencias.
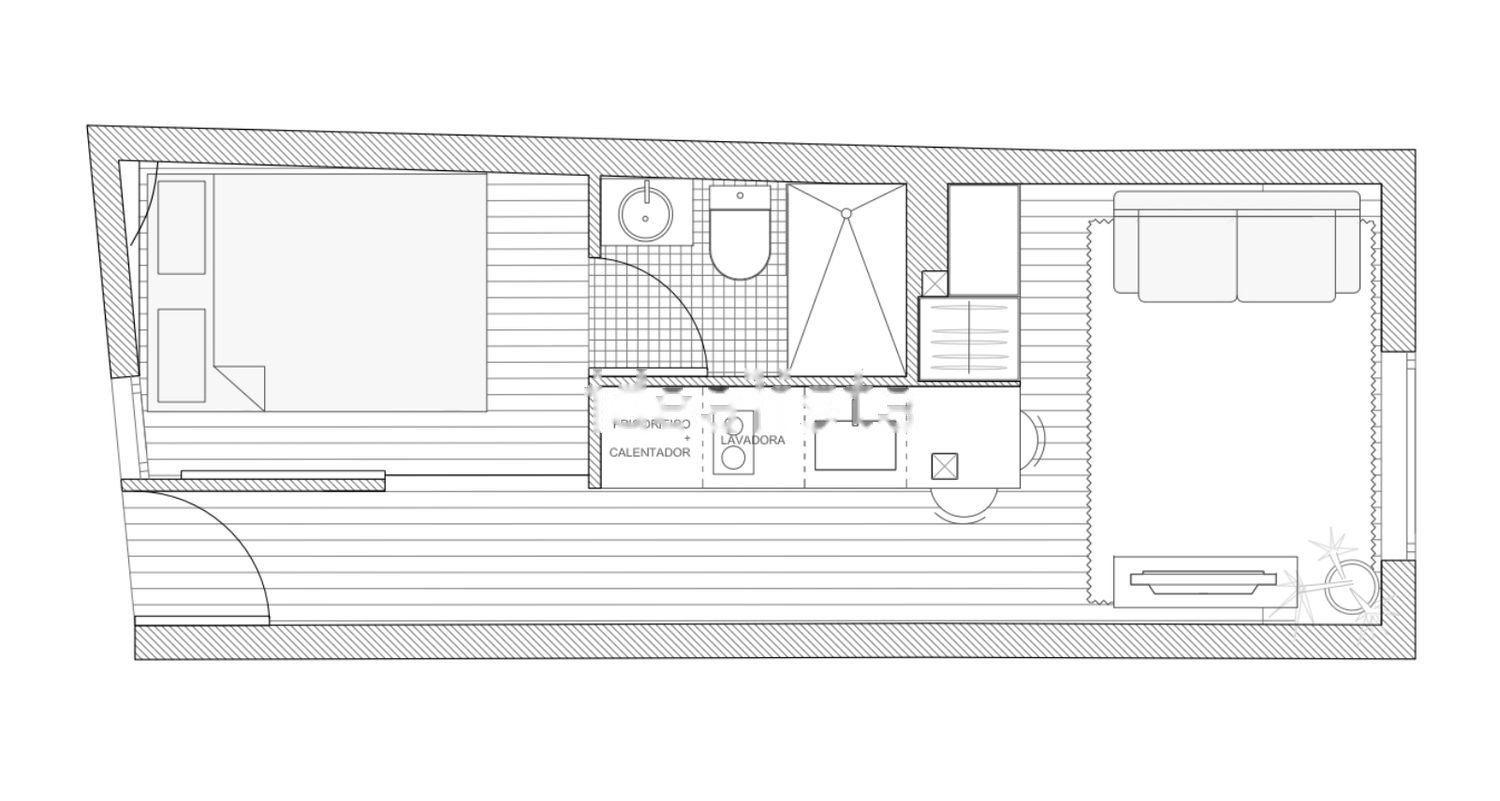
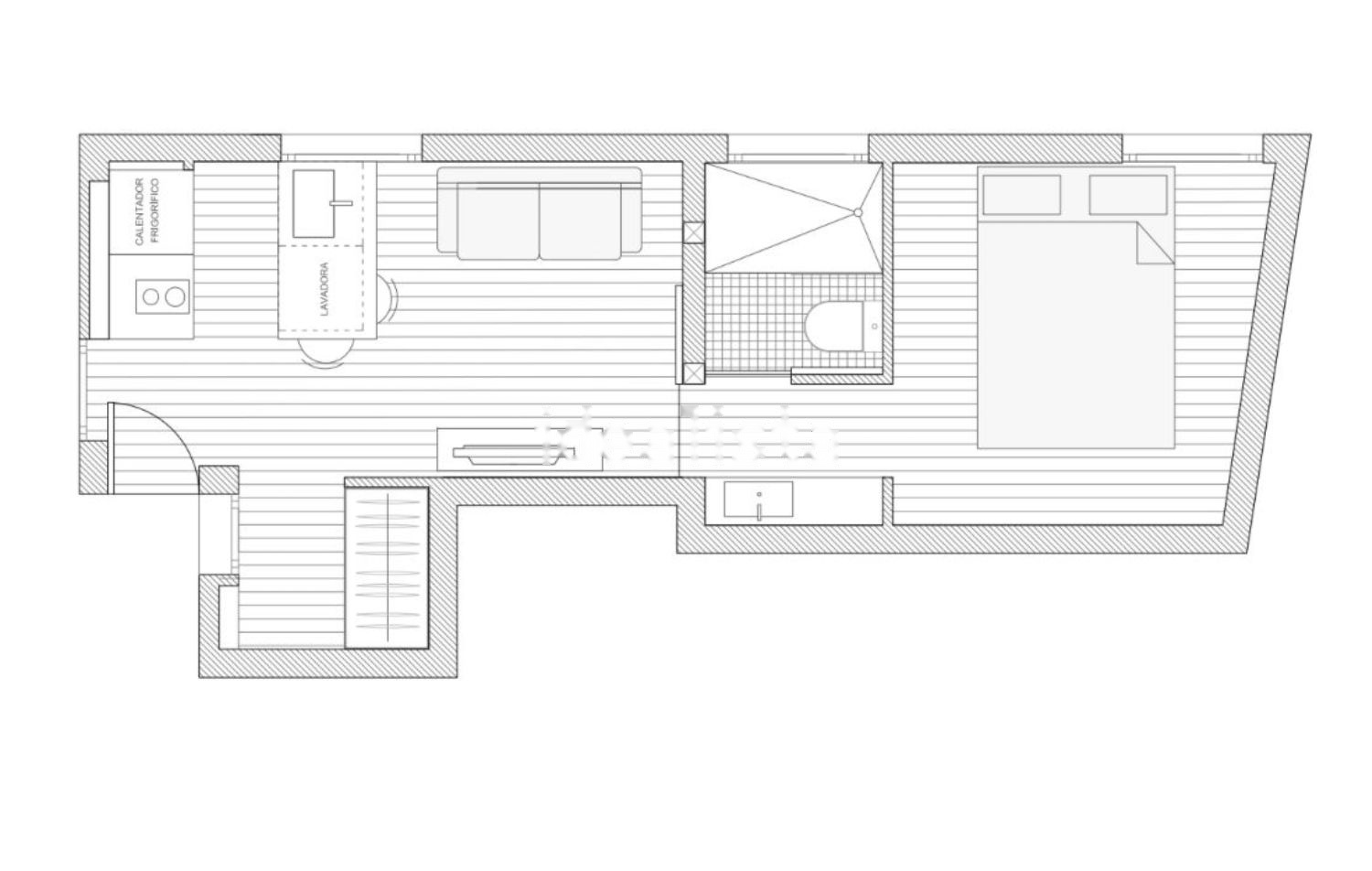
Se vende piso reformado de hace 8 años, exterior, distribuido en salón con cocina totalmente equipada (frigorífico con congelador, vitrocerámica, campana extractora y lavadora), dormitorio y baño.
Los gastos de comunidad son de 25 €/mes.
Las fotos corresponden al término de la reforma y el vídeo a la actualidad. En la actualidad, haría falta únicamente un repaso de pintura.
Ideal como inversión o primera vivienda.
Características
| Tipo de vivienda | Piso |
| Precio | 169.000 € |
| Referencia | 4781903 |
| Superficie total | 30 m2 |
| Habitaciones | 1 |
| Zona | Palos De Moguer |
| Población | Madrid |
| Provincia | Madrid |
| Cert. energética | |
| Amueblado | No |
| Calefacción | No |
| Aire acondicionado | No |
| Ascensor | No |
| Balcón | No |
| Terraza | No |
| Lavadero | No |
| Jardín | No |
| Piscina | No |
| Garaje | No |
| Trastero | No |
| m2 útiles | 30 |
Localización
La vivienda se encuentra en Palos De Moguer - Madrid (Madrid)
Viviendas similares
Contacto
