Piso en venta

Madrid - Casco Histórico de Vicálvaro

Referencia:4246412
244.000 €
Precio
4
Habs
102
M2

Descripción

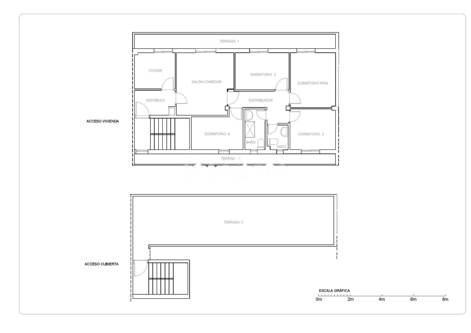
Oportunidad única de adquirir una vivienda AMPLIA de 4 dormitorios y 3 terrazas, con muy poca oferta en la zona, además de su excelente ubicación. La vivienda consta de una superficie de 137 m² construidos, con una distribución inmejorable que se divide en: - 4 dormitorios, disponiendo de aire acondicionado (bomba frio/calor) en la habitación principal. - 2 baños, ambos con ventana al exterior, uno completo con plato de ducha y aseo - Cocina independiente con ventana al exterior. - Magnífico salón muy luminoso e independiente, dotado de aire acondicionado (bomba frio/calor) - Dispone de 3 terrazas: una que es accesible desde el salón; otra desde uno de los dormitorios, y la tercera está situada en la parte superior, amplísima, con grandes posibilidades. La vivienda destaca por su cercanía a colegios, organismos públicos, parques, biblioteca, centros deportivos, supermercados, cafeterías, centros de salud y mayores, farmacias. No dispone de ascensor ni garaje. A sólo 20 metros del metro L9 “Vicálvaro”, y línea de autobuses de EMT (106, 100, 130, 4, 71, E3, etc. ), además de conexiones con municipios cercanos como Coslada y San Fernando de Henares (autobús 287). También, hay una estación de Renfe Cercanías (VICÁLVARO), que comunica con la estación de Atocha en apenas 15 minutos, donde podrá disponer de trenes de media y larga distancia, como el AVE. Dada su ubicación al lado de la autopista M-40 y la autovía A-3, el barrio es fácilmente accesible en coche. FINANCIACIÓN = Hasta el 95%
=== ABSTENERSE AGENCIAS e INTERMEDIARIOS ===.

Características

Tipo de viviendaPiso
Precio244.000 €
Referencia4246412
Superficie total102 m2
Habitaciones4
Baños2
ZonaCasco Histórico De Vicálvaro
PoblaciónMadrid
ProvinciaMadrid
Cert. energética
AmuebladoNo
CalefacciónNo
Aire acondicionado
AscensorNo
BalcónNo
Terraza
LavaderoNo
JardínNo
PiscinaNo
GarajeNo
TrasteroNo
m2 útiles102

Localización

La vivienda se encuentra en Casco Histórico De Vicálvaro - Madrid (Madrid)

Localización Topbrokers

Viviendas similares

  • 310.000 €
    Piso en venta
    2
    Habs
    90
    M2
    Madrid - Rejas
    Referencia: 4727052
  • 315.000 €
    Piso en venta
    3
    Habs
    92
    M2
    Madrid - Valdezarza
    Referencia: 4834852
  • 185.000 €
    Piso en venta
    1
    Habs
    60
    M2
    Madrid - Berruguete
    Referencia: 4727056
  • 72.360 €
    Piso en venta
    3
    Habs
    59
    M2
    Madrid - San Cristóbal
    Referencia: 4834873
  • 475.000 €
    Piso en venta
    2
    Habs
    92
    M2
    Madrid - Simancas
    Referencia: 4834885
  • 184.500 €
    Piso en venta
    3
    Habs
    85
    M2
    Madrid - Entrevías
    Referencia: 4052105

¿Te interesa esta vivienda?

Gracias por contactarnos. Responderemos lo antes posible.
Ha habido un error al enviar el email. Vuelve a intentarlo o pruébalo más tarde.
Contacto
Mataró

Ronda República 4

© Copyright 2026 - Topbrokers Real Estate Technology, S.L.Aviso legal

Este sitio web utiliza cookies propias y de terceros. Más información

Entendido