Piso en venta

Jaca - Centro - Llano Samper

Referencia:4388531
285.000 €
Precio
3
Habs
92
M2

Descripción

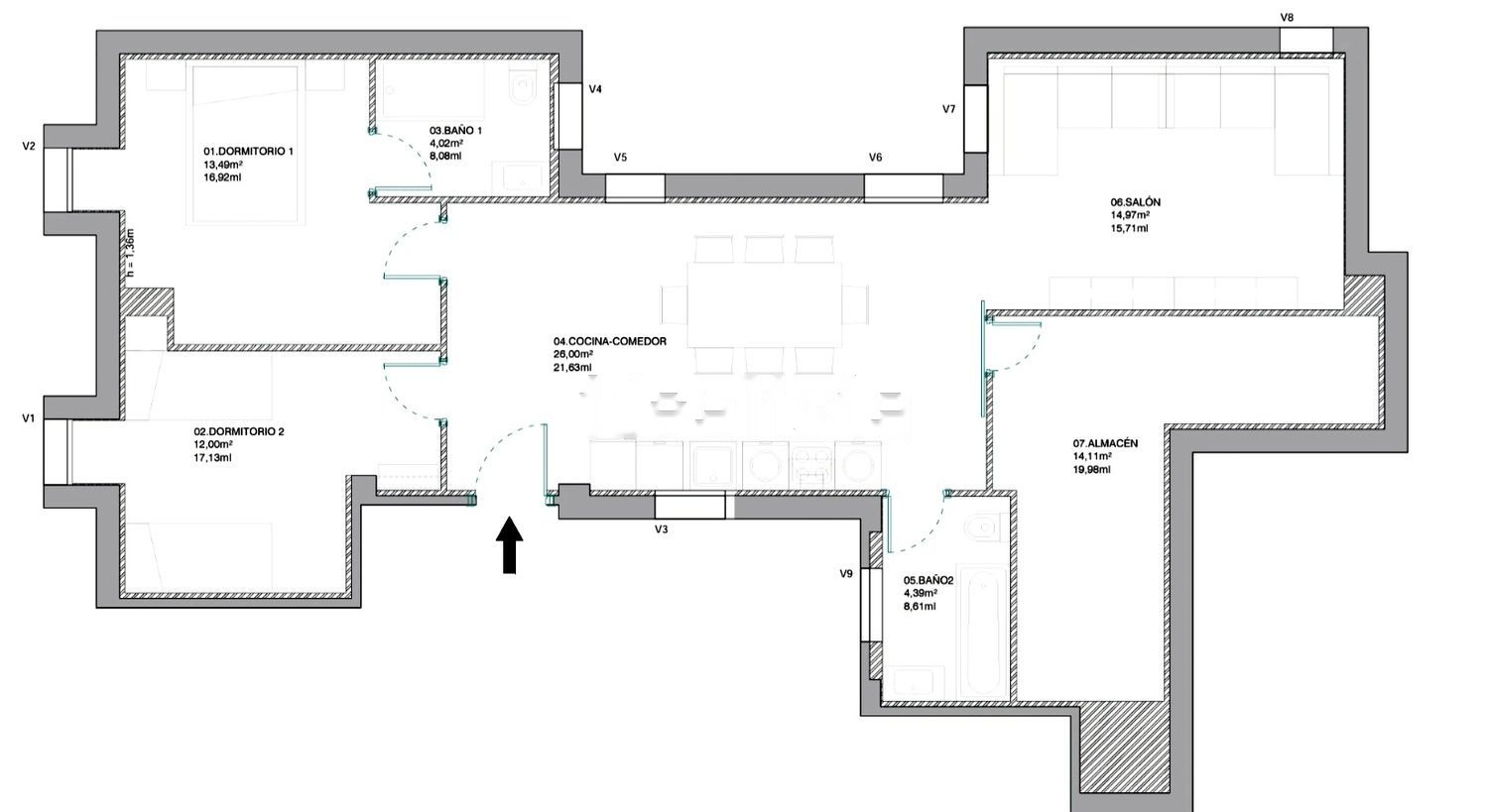
Disfruta de un ático abuardillado recién reformado en el centro de Jaca con todas las comodidades. A la vivienda se accede a través de un amplio comedor climatizado (A. A. ) con cocina equipada para 5 personas con lavadora-secadora, horno, frigorífico-congelador, e inducción, un espejo de grandes dimensiones enmarcado y una Red de barco a 2,40m de altura con escalera para poder tumbarte a leer o echar la siesta.
A través de este espacio se accede al resto de dependencias de la casa:
- Un dormitorio abuhardillado con cama de matrimonio, armario, ventilador de techo, armario empotrado y un baño con lavabo doble, inodoro suspendido y ducha. La habitación esta separa del baño por una puerta y un vidrio inteligente que puede ponerse transparente en caso de querer ver la ducha desde la cama.
- Un segundo dormitorio amplio y abuhardillado con dos camas nido para poder dormir hasta tres personas.
- Un segundo baño con bañera doble, inodoro y lavabo todo con iluminación natural.
- Un tercer dormitorio climatizado (A. A. ) y abuardillado convertido en sala de telvisión con un sofá cama, paneles acusticos y dejaremos los cables del sistema de sonido para que puedas instalar tu TV y tu istema de sonido 5.1 (TV y sist de sonido no incluídos).
- Armario de limpieza para guardar los utensilios de limpieza.
- Almacén para guardar cosas (1,5m de altura en la zona abuardillada).
- Sala de instalaciones donde está la caldera (1,5m de altura en la zona abuardillada).
La vivienda cuenta con calefacción en todas las habitaciones, aire acondicionado acondicionado en el salón y en el cuarto de TV. Además lo entregamos con caldera de gas para hacer la calefacción domotica.
La vivienda se puede vender amueblada, pero el precio de venta no incluye mobiliario ni decoración.
También hay posibilidad de contratar fibra telefónica (ahora la tiene contratada para controlar la calefaccion por wifi).
Se trata de un apartamento en un tercer piso sin ascensor, con escaleras comodas.
Su situación es inmejorable, a 200m del parking gratuito de la ciudadela (no hay zona azul en la manzana de la vivienda por lo que los aparcamientos cercanos de la calle también son graruitos. Estarás a 5min andando de la Ciudadela, y dispondrás de 3 supermercados (Bonaera que abre los domingos), Eroski y Co-Aliment. Además el apartamento se enuentra a tan solo 5min andando de la catedral, por lo que tienes toda la zona turística de Jaca en casa.
El apartamento no es apto para alquiler turístico.

Características

Tipo de viviendaPiso
Precio285.000 €
Referencia4388531
Superficie total92 m2
Habitaciones3
Baños2
ZonaCentro - Llano Samper
PoblaciónJaca
ProvinciaHuesca
Cert. energética
AmuebladoNo
Calefacción
Aire acondicionado
AscensorNo
BalcónNo
TerrazaNo
LavaderoNo
JardínNo
PiscinaNo
GarajeNo
TrasteroNo
m2 útiles92

Localización

La vivienda se encuentra en Centro - Llano Samper - Jaca (Huesca)

Localización Topbrokers

Viviendas similares

  • 165.000 €
    Piso en venta
    1
    Habs
    45
    M2
    Jaca - Astún
    Referencia: 4285400
  • 79.000 €
    Piso en venta
    0
    Habs
    26
    M2
    Jaca - Astún
    Referencia: 2120834
  • 316.000 €
    Piso en venta
    3
    Habs
    90
    M2
    Jaca - Palacio de Hielo
    Referencia: 4781657
  • 185.000 €
    Piso en venta
    2
    Habs
    55
    M2
    Jaca - Membrilleras - Levante
    Referencia: 4315357
  • 138.000 €
    Piso en venta
    0
    Habs
    73
    M2
    Jaca - Casco Antiguo - Ciudadela
    Referencia: 3767518
  • 185.000 €
    Piso en venta
    4
    Habs
    110
    M2
    Jaca - Casco Antiguo - Ciudadela
    Referencia: 3735141

¿Te interesa esta vivienda?

Gracias por contactarnos. Responderemos lo antes posible.
Ha habido un error al enviar el email. Vuelve a intentarlo o pruébalo más tarde.
Contacto
Mataró

Ronda República 4

© Copyright 2026 - Topbrokers Real Estate Technology, S.L.Aviso legal

Este sitio web utiliza cookies propias y de terceros. Más información

Entendido